
...
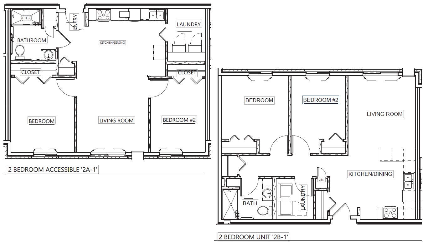
Souris Heights is a 54 unit apartment complex for individuals that are 55 and older located at 1400 35th Ave NW Minot, ND 58703
Secure your apartment today by filling out an application and dropping it off at the Minot Housing Authority office.
Amenities include: